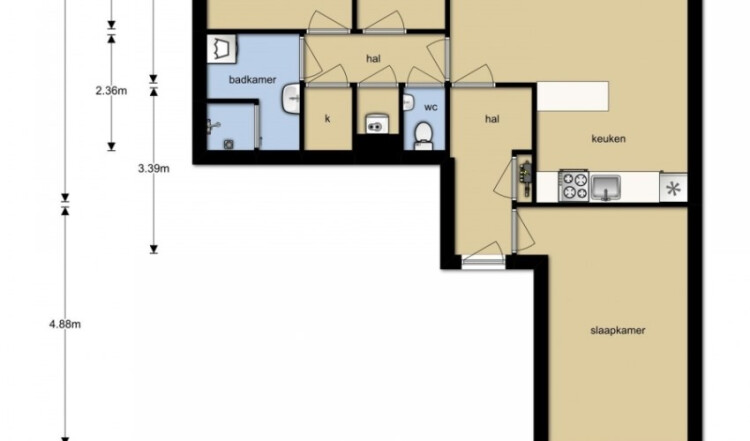
This Apartment is rented out Niermansgang in Enschede

  • 99 m2
  • 4 rooms
  • ? Starting date
  • Indefinite period
On this page you will find all information of this Apartment in Enschede. You can contact the advertiser if you have any questions.

Object: Direct bij de eigenaar
Huurtermijn: Onbepaalde termijn
Oplevering: Zie foto
Inkomen eis:3,1 x Bruto huur
Garantiestelling mogelijk: Ja
Borg: 1 Maand
Bemiddeling kosten: Nee
Woningdelers toegestaan: Ja
Huisdieren toegestaan: Afhankelijk van de Eigenaar
Huurtoeslag grens: Nee
Geschikt voor studenten: Afhankelijk van de Eigenaar

Read more with an package!

General information

City Enschede
District/Neighbourhood: Lasonder, Zeggelt
Register municipality: Yes
Status: Unfurnished
Housemates: None
Starting date: Ask the advertiser
Viewing In Consultation

Facilities

Private bathroom
Private kitchen
Private toilet
Private front door
Ask the advertiser
Ask the advertiser
Private living room
Show on map